Ref. 11284
SUPERFICIES:
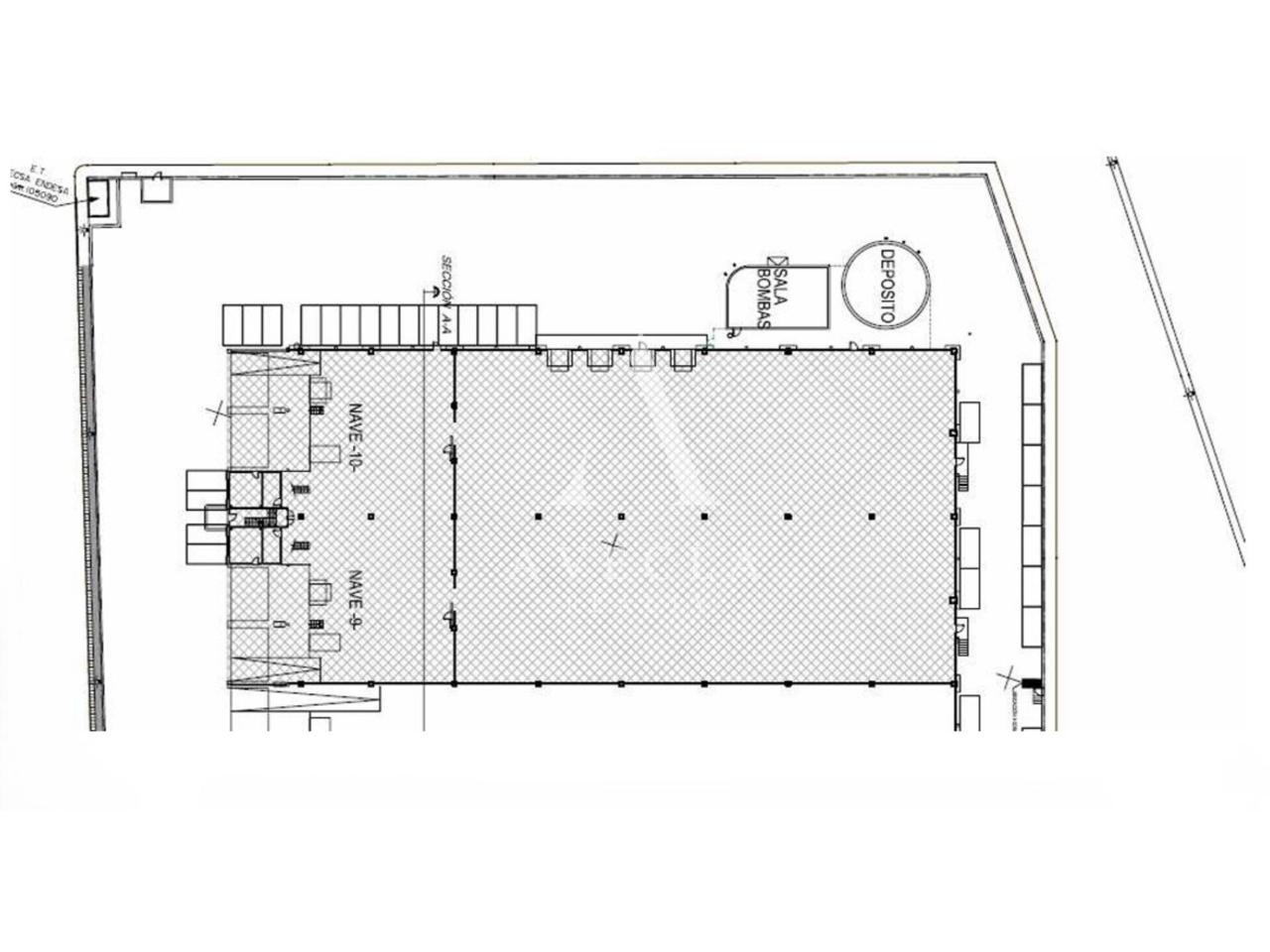
Planta baja: 3.510 m2
Primera Planta: 338 m2
Sup. Tot. Cons: 3.848 m2.
CARACTERÍSTICAS:
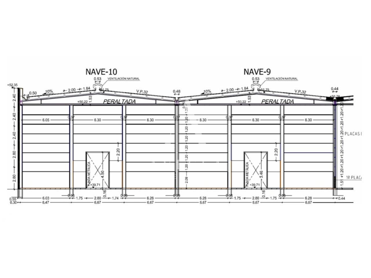
Nave logística con fachada autopista.
Estructura hormigón.
Cubierta tipo deck.
Altura interior 10,50 m.
8 muelles y 2 rampas.
Oficinas condicionadas.
Aseos y vestuarios.
Medidas PCI: Rociadores, ESFR, bocas de incendio y detectores.
Suministros de alta.
Seguridad y control de acceso.
Plazas de aparcamiento.
Posibilidad de adquirir estanterías con capacidad de 6.000 palets.
UBICACIÓN:
El Polígono Industrial Nord-Est de Sant Andreu de la Barca es un área industrial consolidada y una de las zonas económicas más activas del municipio. Se trata de un polígono diverso, con presencia de empresas industriales, logísticas y de servicios, y cuenta además con una asociación empresarial propia que fortalece la coordinación y competitividad del área.
SUPERFICIES:
Planta baja: 3.510 m2
Primera Planta: 338 m2
Sup. Tot. Cons: 3.848 m2.
CARACTERÍSTICAS:
Nave logística con fachada autopista.
Estructura hormigón.
Cubierta tipo deck.
Altura in...
SUPERFICIES:
Planta baja: 3.510 m2
Primera Planta: 338 m2
Sup. Tot. Cons: 3.848 m2.
CARACTERÍSTICAS:
Nave logística con fachada autopista.
Estructura hormigón.
Cubierta tipo deck.
Altura interior 10,50 m.
8 muelles y 2 rampas.
Oficinas condicionadas.
Aseos y vestuarios.
Medidas PCI: Rociadores, ESFR, bocas de incendio y detectores.
Suministros de alta.
Seguridad y control de acceso.
Plazas de aparcamiento.
Posibilidad de adquirir estanterías con capacidad de 6.000 palets.
UBICACIÓN:
El Polígono Industrial Nord-Est de Sant Andreu de la Barca es un área industrial consolidada y una de las zonas económicas más activas del municipio. Se trata de un polígono diverso, con presencia de empresas industriales, logísticas y de servicios, y cuenta además con una asociación empresarial propia que fortalece la coordinación y competitividad del área.
Leer más